產品特點/Product features-----------------------------------------------------------◆◆
概述
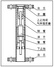
標準型LZ系列金屬轉子流量計個測量管和一個就地指示器組成。 就地指示器還可以選擇安裝附加的電氣部件,適用于液體和氣體的測量。
本流量計由麥克儀表采用變面積式測量原理,測量部件由一個錐形測量管和浮子 組成,浮子能在錐形測量管中自由的上下移動,改變管道中
的流通面積, 隨著流量大小的變化,浮子在測量管中的垂直位置也發生相應的變化,通鋼管過磁傳遞系統將浮子的位置傳遞到指示器的刻度盤
上,指示流量值的大小。在M6、M8、M9指示器中,隨動磁鐵的轉動被直接傳送到刻度盤上;在M7指示器中,隨動磁鐵的轉動通過一個凸輪
板使指針線性的指示流量值的大小。
特點:
1.全金屬結構,堅固穩定。
2.短行程、小型結構設計。
3.低壓力損失設計。
4.新型磁耦合結構設計確保傳輸信號更加穩定。
5.根據用戶要求可以加裝磁過濾器。
6.可帶保溫或伴熱夾套。
7.用于各行業的氣體和液體測量,測量部分可采用不同的材質來適應不同的介質條件。
8.適合于惡劣環境和腐蝕嚴重的介質, 具有良好的抗熱性和耐壓性。
9.智能型雙行液晶顯示,可選現場瞬 時/累計流量顯示,可帶背光。
10.可選二線制、電池、交流供電方式。
11.帶有數據恢復、數據備份及掉電 保護功能。
技術參數/Technical parameters-------------------------------------------------------◆◆
1.測量范圍:水 (20℃ ) 2.5~180000L/h 空氣(20℃ 101325Pa)
0.07~3000m3/h
2.量程比:DN(15~100) 為 10:1;DN(125~150) 為 5:1
3.測量管:孔板測量管,錐形測量管
4.準確度等級:2.5 級或 1.5 級
5.壓力損失:見流量表
6.最大工作壓力:DN15~50:4.0MPa;DN80~150: 1.6MPa;夾套
的壓力等級:1.6MPa
7.介質溫度:(-80~+200)℃, 耐腐型為(0~85)℃,高溫型為(-80~
+300)℃
8.環境溫度:(-25~+120)℃; 電遠傳型為(-20~+70)℃; 帶液晶顯
示為(-2~+60)℃。
9.介質粘度:DN15≤5mPa.s; DN(25~150)≤250mPa.s
10.連接方式:法蘭連接,法蘭標準 GB/T9119; 也可按用戶要求制作
11.防護等級:IP65
12.電遠傳:
電源電壓:24(1±10%)V DC
輸出信號:(4~20)mA DC,二線制(可選兼容 HART 協議)
線 性 度:1%
負載電阻:≤500Ω (24V DC) 溫度影響:<±0.05% F.S/℃
電源消耗:<1 W
接線電纜:RVVP 3×28/0.15 電氣接口:M20×1.5
13.限位報警:
電源電壓:24(1±10%)V DC 電源消耗:<1 W
工作溫度:(-25~+65)℃ 最大負載電流:50mA
14.本安型防爆標志:ExibⅡCT5 隔爆型防爆標志: ExdⅡBT5
15.推薦配用安全柵:LB906
◆ M7指示器
A、就地指示器,通過凸輪板修正線性的指示流量。
B、采用新型的ESK型信號變送器,可兼有HART協 議通訊功能。
C、可在就地流量指示型儀表內選擇安裝:
◇ 帶(4~20)mA線性輸出的5W1角位移信號變送器;
◇ 帶(4~20)mA非線性輸出無滯后的ESK型信號變送器;
◇ 上、下限報警開關。
◆ M9指示器
A、在指示器中采用一對耦合磁鋼完成流量指示和電信號轉換。
B、采用最新型的ESK型信號變送器,可兼有HART協議通訊功能。
C、可在就地流量指示型儀表內選擇安裝:
◇ 帶(4~20)mA非線性輸出并無滯后的ESK型信號變送器;
◇ 上、下限報警開關。
產品外形尺寸/Product dimensions-----------------------------------------------------◆◆



安裝方式/Installation method---------------------------------------------------------◆◆








